ID CP2259842

Penthouse Zona verde 1 Decembrie Titan Ansamblu premium Metrou STB

ID CP2259842

170,000 € + 21% TVA

Apartament cu 4 camere de vânzare
Theodor Pallady, Bucuresti
154.5 mp
2025

DIRECT DEZVOLTATOR

BIROU VANZARI

0% COMISION

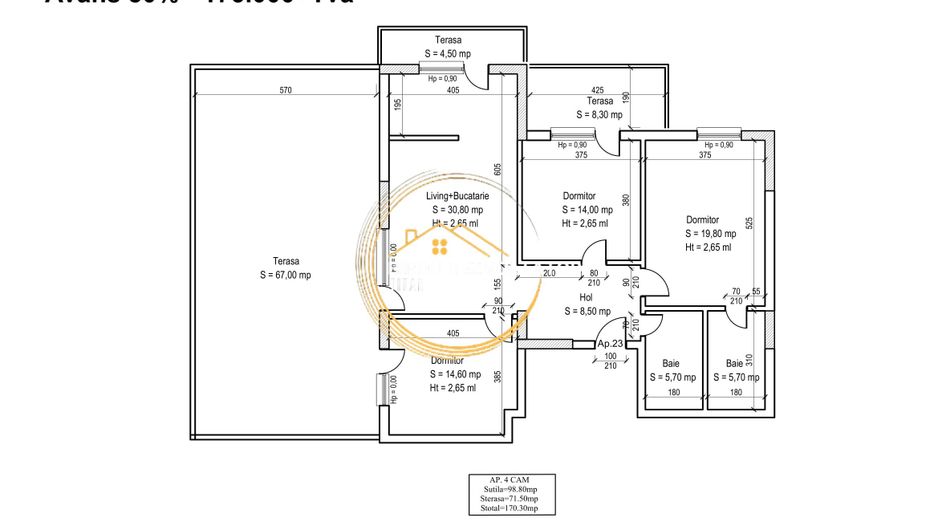
Avans la antecontract 30%-180.000+TVA

Avans la antecontract 80%-170.000+TVA

Apartamentul este decomandat, printr-un hol generos, doua bai cu sanitare moderne, trei dormitoare mari, cu dressing, camera de zi mare si bucatarie, cu acces intr-o terasa de peste 48mp.

Bloc boutique, modern, cu zona comerciala, parcare demisol, 3 nivele si doar 24 de locuinte, de la 2 pana la 4 camere, decomandate, cu gradini, terase si balcoane generoase, finisaje premium, incalzire in pardoseala, instalatii pentru aer conditionat montate, sanitare moderne, geamuri mari, tripan, boxe pentru depozitare, intr-o zona dezvoltata, cu spatii verzi, case si in proximitatea mijloacelor de transport in comun, statiile de metrou 1 Decembrie 1918 sau Nicolae Teclu, Parcul Teilor si a centrelor comerciale Auchan Titan si Centrul Comercial Pallady.

Usa metalica de intrare in apartament cu un grad ridicat de Securitate

Gresie si faianta

Bai cu sanitare moderne

Geam termopan low-E

Parchet laminat 8 sau 10mm

Usi de interior

Lift 6 persoane

Centrala termica pentru fiecare apartament

Incalzire in pardoseala

Structura de beton armant, cu fundatie tip radier general, structura ridicata prin stalpi, grinzi si plansee, prereti partiali din beton armat, comform nomelor in vigoare, compartimentare de Caramida Porotherm, de 30cm peretii perimetrali si 15cm peretii interiori, geamuri mari salamander termopan cu 6 camere, izolatie exterioara este asigurata de polistiren de 15cm, izolatie cu vata bazaltica ignifuga pentru zona de boxe si parcari, terasa blocului este izolata termic si hidro si este necirculabila, balcoanele locuintelor vor fi partial inchise cu balustrade metalice .

Instalatii electrice si sanitare, incalzire in pardoseala vor fi montate imediat dupa finalizarea zidariei, iar dupa va fi turnata sapa autonivelanta, apoi instalata folie izolatoare.

Apartamentele vor fi tenciuite mecanizate pe spatiile comune si interiorul apartamentelor, aplicare glet si lavabil, dupa care se vor finisa interiorul locuintelor.

Nota: Imaginile sunt cu titlu de prezentare.

Avans la antecontract 30%-180.000+TVA

Avans la antecontract 80%-170.000+TVA

Citește mai mult

  • Tip apartament
    Apartament
  • Compartimentare
    Decomandat
  • Număr camere
    4
  • Dormitoare
    3
  • Număr bucătării
    1
  • Număr băi
    2
  • Etaj
    3
  • Suprafață utilă
    154.5 mp
  • Suprafață construită
    177 mp
  • Suprafață totală
    154.5 mp
  • Suprafață terasă
    48 mp
  • Disponibilitate
    Imediat
  • Orientare
    Sud-Est
  • Confort
    1
  • Stare interior
    Finisat modern
  • Anul finisării
    2025
  • Număr balcoane
    1
  • Număr terase
    1
  • Imobil
    Bloc de apart.
  • Stadiu construcție
    În construcție
  • An construcție
    2025
  • Tip construcție
    Beton
  • Număr etaje clădire
    2
  • Număr etaje retrase
    1
  • Are demisol
    Da

Facilități

Acces pentru persoane cu dizabilități
Aer condiționat
Apă
Apometre
Boxă la subsol
Bucătărie deschisă
Bucătărie închisă
Cabină de duș
Cadă
Canalizare
CATV
Centrală proprie
Contor căldură
Contor electric
Contor gaz
Curent
Curte comună
Faianță
Ferestre aluminiu
Garaj subteran
Gaz
Geamuri tripan
Grădină proprie
Gresie
Iluminat stradal
Încălzire prin pardoseală
Interfon
Internet
Izolație exterioară
Lift
Loc de joacă copii
Mijloace de transport în comun
Parcare biciclete
Parchet
Parchet laminat
Pază
Străzi asfaltate
Supraveghere video
Telecomandă poartă acces auto
Telefon
Ușă intrare metal
Uși interior celulare
Uși interior lemn
Videointerfon
Vopsea lavabilă
Wireless
Florian Tudoran
Manager

0735391987


Solicită chiar acum o vizionare
Telefon
Sună acum Solicită vizionare
Necesare:

Site-ul nu poate funcționa corect fără aceste cookie-uri. Vezi cookie-urile

Statistică:

Strângem statistici anonime despre voi, vizitatorii unici, pentru a vă îmbunătăți experiența dumneavoastră. Vezi cookie-urile

Marketing:

Pentru a ne promova mai eficient serviciile noastre, folosim cookies pentru a vă identifica și a vă oferi proprietăți și servicii personalizate. Vezi cookie-urile

Acest site folosește cookies, află detalii. Alege ce tipuri de cookies dorești să permitem: