ID CP2572448

Decomandat Modern 2 bai Metrou Teclu zona verde Titan Pallady ikea

ID CP2572448

105,267 € + 21% TVA

Apartament cu 3 camere de vânzare
Theodor Pallady, Bucuresti
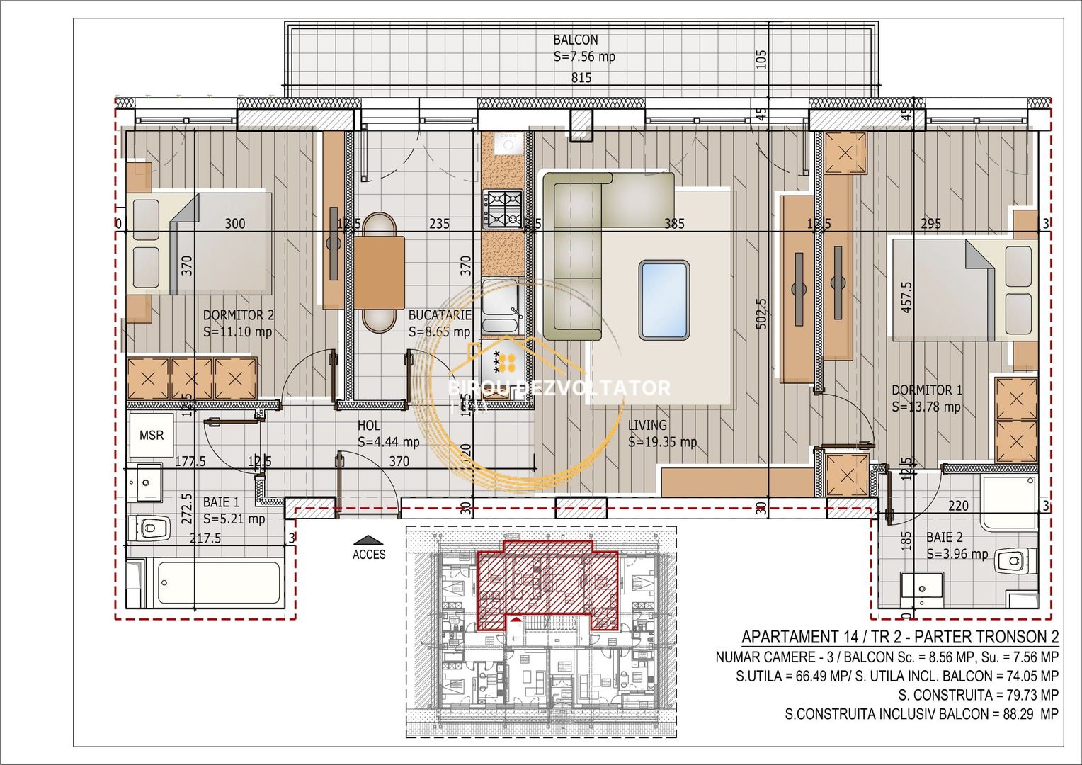
74.09 mp
2025

BIROU DEZVOLTATOR

COSMISION O%

Pret apartament:

Avans 80% la antecontract-105,267+TVA

Avans 15% la antecontract-107,373+TVA

Apartament de aproximativ 74 mp de 3 camere, cu un hol generos, doua bai, bucatarie inchisa, doua dormitoare generoase si un balcon ce ofera acces din camera de zi si bucatarie.

Ansamblu modern, format din 3 blocuri de 2 si 3 nivele, cu apartamente de la 2 si 3 camere, cu gradini si balcoane generoase, zone veriz, parcari exterioare, zone de relaxare si locuri de joaca, cu o pozitionare ideala in Cartierul Titan-Theodor Pallady.

Structura de beton armant, cu fundatie tip radier general, structura ridicata prin stalpi, grinzi si plansee, prereti partiali din beton armat, comform nomelor in vigoare, compartimentare de Caramida Porotherm, de 30 cm peretii perimetrali si 15cm peretii interiori de rigips+vata minerala, geamuri mari salamander termopan cu 6 camere, izolatie exterioara este asigurata de polistiren de 15cm, izolatie cu vata bazaltica ignifuga pentru zona de boxe si parcari, terasa blocului este izolata termic si hidro si este necirculabila, balcoanele locuintelor vor fi partial inchise cu balustrade metalice .

Instalatii electrice si sanitare, incalzire prin calorifer, vor fi montate imediat dupa finalizarea zidariei, iar dupa va fi turnata sapa autonivelanta, apoi instalata folie izolatoare.

Apartamentele vor fi tenciuite mecanizate pe spatiile comune si interiorul apartamentelor, aplicare glet si lavabil, dupa care se vor finisa interiorul locuintelor.

Pret apartament:

Avans 80% la antecontract-105,267+TVA

Avans 15% la antecontract-107,373+TVA

Citește mai mult

  • Tip apartament
    Apartament
  • Compartimentare
    Semidecomandat
  • Număr camere
    3
  • Dormitoare
    2
  • Număr bucătării
    1
  • Număr băi
    2
  • Etaj
    3
  • Suprafață utilă
    74.09 mp
  • Suprafață construită
    88 mp
  • Suprafață totală
    74.09 mp
  • Disponibilitate
    Imediat
  • Orientare
    Sud
  • Confort
    1
  • Stare interior
    Finisat modern
  • Anul finisării
    2025
  • Număr balcoane
    1
  • Imobil
    Bloc de apart.
  • Stadiu construcție
    Finalizată
  • An construcție
    2025
  • Construcție nouă
    Da
  • Tip construcție
    Beton
  • Număr etaje clădire
    3

Facilități

Acces pentru persoane cu dizabilități
Acoperiș
Apă
Apometre
Bucătărie închisă
Cadă
Calorifere
Canalizare
CATV
Centrală proprie
Contor căldură
Contor electric
Contor gaz
Curent
Curte comună
Facilități sportive
Faianță
Ferestre care se deschid
Ferestre PVC
Gaz
Geamuri termopan
Geamuri tripan
Gresie
Iluminat stradal
Interfon
Internet
Izolație exterioară
Izolație interioară
Lift
Loc de joacă copii
Mijloace de transport în comun
Parchet laminat
Spații agrement
Străzi asfaltate
Supraveghere video
Telecomandă poartă acces auto
Telefon
Ușă intrare metal
Uși interior celulare
Uși interior lemn
Vopsea lavabilă
Florian Tudoran
Manager

0735391987


Solicită chiar acum o vizionare
Telefon
Sună acum Solicită vizionare
Necesare:

Site-ul nu poate funcționa corect fără aceste cookie-uri. Vezi cookie-urile

Statistică:

Strângem statistici anonime despre voi, vizitatorii unici, pentru a vă îmbunătăți experiența dumneavoastră. Vezi cookie-urile

Marketing:

Pentru a ne promova mai eficient serviciile noastre, folosim cookies pentru a vă identifica și a vă oferi proprietăți și servicii personalizate. Vezi cookie-urile

Acest site folosește cookies, află detalii. Alege ce tipuri de cookies dorești să permitem: